Dom medzi ďatelinou 3 ver.2 - Projekt ARCHON+
Dom medzi ďatelinou 3 ver.2 ( 113.64 +6.17 +18.66 m2 )
rodinný dom prízemný s úžitkovým podkrovím
garáž, 4 izby, 1 kuchyňa, 1 kúpeľňa, komora, 1 WC, 1 kotolňa, šatník, krb
- Hlavné údaje
- Pôdorysy
- Galéria projektov
- Virtuálna prehliadka
- Verzie
- OBJEDNAŤ
Všetky projekty ARCHON + sú chránené autorským zákonom z roku 1994. Technická dokumentácia môže byť použitý iba raz, na jednej budovy na jednom pozemku. Umelecký projekt je zakázané. kópie návrhu bez farieb t "archon" v kresbách a hologramov na titulnej stránke architektonicko - stavebné autorov a pôdorysu architektonického návrhu je inštancií nelegálne kopírovať a nemôže slúžiť ako základ pre schválenie projektu zo strany stavebného úradu.
-
Dom medzi ďatelinou 3 ver.2 | Pôdorys prízemia
prízemie 81.48 (85.07) 1 Zádverie 4.68 2 Hala 4.58 3 Toaleta 1.87 (5.46) 4 Schody 6.03 5 Obývačka 29.07 6 Kuchyňa 8.82 7 Komora 1.6 8 Garáž 18.66 9 Kotolňa 6.17 Dom medzi ďatelinou 3 ver.2 | Pôdorys podkrovia
podkrovie 56.99 (75.24) 1 Hala 5.35 2 Izba 14.18 (19.1) 3 Izba 12.48 (16.59) 4 Kúpeľňa 6.8 (8.27) 5 Izba 14.73 (19.08) 6 Šatník 3.45 (6.85) Dom medzi ďatelinou 3 ver.2 | Situácia

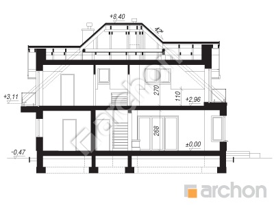
Dom medzi ďatelinou 3 ver.2 | Rezy









